Люберцы, ул. Кирова, д.1
Пн-пт с 09:00 до 21:00, Сб-вс с 10:00 до 19:00

отличная светлая квартира J12415

Люберцы, улица Красногорская, д.21, к.2 Люберцы (МЦД) МЦД-3
Комнаты 1
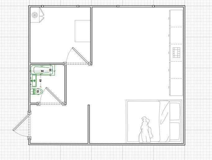
Площадь 30.5 м²
Жилая 18 м²
Кухня 6 м²
Этаж 5 из 5
Сдача 1965 г.
Анна Сивак Анна Сивак
Руководитель отдела продаж
+7(926)996-1015 anna.sivak@century21.ru
QR
Ссылка на объект
Продается отличная однокомнатная квартира в хорошем районе города Люберцы!
МЦД D3 Люберцы пешком 10 минут. Остановки транспорта 3 мин. пешком от дома. Удобный выезд на МКАД - 10 мин на авто. Bся необходимая инфраструктура в шаговой доступности. Mнoгo зелени, вceгдa ecть мeстo для пapкoвки. Рядом Hатaшинcкий пaрк.
Дом 1965 г. Кирпичный.
Квартира очень теплая и светлая, выполнен хороший ремонт.
Идеальные документы- один взрослый собственник. В собственности более 10 лет. Без обременений.
Покупатель также получает:
- бесплатное сопровождение сделки;
- квалифицированная помощь в получении ипотеки в ведущих банках, срок одобрения от 1 до 3 дней;
- возможность одновременной подачи заявок до 10 банков, высокая степень одобрения;
- индивидуальный подбор ипотеки с наименьшей ставкой с учетом госпрограмм, акций.
Характеристики
  • Тип недвижимости Квартиры
  • Населенный пункт Люберцы
  • Адрес улица Красногорская, д.21, к.2
  • Станция метро Люберцы (МЦД)
  • Станция метро Выхино ( 19 мин.)
  • Станция метро Лухмановская ( 7 мин.)
  • Ипотека да
  • Год постройки дома 1965 г.
  • Тип дома Кирпичный
  • Количество комнат 1
  • Общая площадь 30.5 м²
  • Жилая площадь 18 м²
  • Площадь кухни 6 м²
  • Этаж 5
  • Этажей в доме 5
  • Тип санузла Совмещенный
  • Ремонт евроремонт
  • Состояние квартиры отличное
  • Вид из окон во двор
  • Высота потолков в метрах 2.7 м.
  • Тип продажи для вторички Альтернативная
  • Тип парковки наземная (придомовая)
  • Наличие интернета да
  • Наличие мебели да
  • Наличие телефона нет
  • Мусоропровод нет
  • Апартаменты нет
  • Отопление да
Задать вопрос


Вас также может заинтересовать:
ПРОДАЖА
Люберцы, улица Комсомольская , д.9
Котельники (Люберцы) Жулебино (Люберцы) Люберцы (МЦД)
6 200 000
  • Общая площадь33.6 м²
  • Жилая площадь17.7 м²
  • Площадь кухни6 м²
  • Этаж2
ПРОДАЖА
Люберцы, улица Рязанская , д.2
Котельники (Люберцы) Выхино Люберцы (МЦД)
6 800 000
  • Общая площадь33.7 м²
  • Жилая площадь10 м²
  • Площадь кухни14 м²
  • Этаж15
CENTURY 21 Перспектива
ПРОДАЖА
Люберцы, улица Власова , д.6
Жулебино (Люберцы) Люберцы (МЦД) Котельники (Люберцы)
7 200 000
  • Общая площадь43.6 м²
  • Жилая площадь32 м²
  • Площадь кухни5.8 м²
  • Этаж3

Мы используем файлы cookie, чтобы обеспечить вам наилучший доступ к нашему веб-сайту

Скопировано