Люберцы, ул. Кирова, д.1
Пн-пт с 09:00 до 21:00, Сб-вс с 10:00 до 19:00

Лучшее предложение по цене J12365

Красково, Красково, улица 2-я Заводская, д.20 Красково МЦД-3 6 мин.
Комнаты 3
Площадь 63.3 м²
Жилая 40.4 м²
Кухня 8.4 м²
Этаж 9 из 9
Сдача 1980 г.
QR
Ссылка на объект
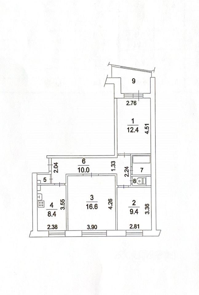
Продается трехкомнатная квартира с отличной планировкой!
Комнаты изолированы, 12,4, 16,6 и 9,4кв.м и лоджия 9кв.м! Можно утеплить и сделать кабинет.
В пешей доступности Большой Красковский карьер и прекрасный вид на него из окна! Окна же выходят на 2 стороны света и не выходят на дорогу. Отличная инфраструктура района, идеально подойдет для семьи. Сады, школы и магазины в ближайшей пешей доступности. До остановки 3 мин пешком, до станции Красково 20мин пешком или 5 мин на авто.

Нашему покупателю:
- Все сделки застрахованы в САО Ресо-Гарант
-Бесплатное сопровождение сделки;
- Квалифицированная помощь в получение ипотеки в ведущих банках, срок одобрения от 1 до 3 дней;
- Специальные скидки 0.3-1%;
- Возможность подачи заявок одновременно до 10 банков, высокая степень одобрения;
- Индивидуальный подбор ипотеки с наименьшей ставкой с учётом гос.программ, акций!
Характеристики
  • Тип недвижимости Квартиры
  • Населенный пункт Красково
  • Микрорайон Красково
  • Адрес улица 2-я Заводская, д.20
  • Станция метро Красково ( 6 мин.)
  • Станция метро Котельники (Красково) ( 27 мин.)
  • Станция метро Жулебино (Красково) ( 28 мин.)
  • Ипотека да
  • Год постройки дома 1980 г.
  • Тип дома Панельный
  • Количество комнат 3
  • Общая площадь 63.3 м²
  • Тип комнат раздельные
  • Жилая площадь 40.4 м²
  • Площадь кухни 8.4 м²
  • Этаж 9
  • Этажей в доме 9
  • Тип санузла Раздельный
  • Количество раздельных санузлов 1
  • Тип балкона балкон
  • Ремонт хороший
  • Состояние квартиры хорошее
  • Вид из окон во двор и на улицу
  • Высота потолков в метрах 2.64 м.
  • Тип продажи для вторички Свободная
  • Тип парковки наземная (придомовая)
  • Наличие интернета да
  • Наличие мебели да
  • Наличие телефона нет
  • Мусоропровод нет
  • Апартаменты нет
  • Количество грузовых лифтов 1
  • Отопление нет
Задать вопрос


Вас также может заинтересовать:
ПРОДАЖА
Красково, улица Лорха , д.10
Красково Некрасовка (Красково) Котельники (Красково)
9 000 000
  • Общая площадь58.6 м²
  • Площадь кухни15 м²
  • Этаж5
  • Тип санузлаСовмещенный
ПРОДАЖА
Красково, улица Карла Маркса , д.117/16
Красково Некрасовка (Красково) Котельники (Красково)
6 100 000
  • Общая площадь44.6 м²
  • Жилая площадь32.5 м²
  • Площадь кухни6 м²
  • Этаж1
ПРОДАЖА
Красково, улица Карла Маркса , д.117/16
Красково Красково
6 100 000
  • Общая площадь44.6 м²
  • Жилая площадь32.5 м²
  • Площадь кухни6 м²
  • Этаж1

Мы используем файлы cookie, чтобы обеспечить вам наилучший доступ к нашему веб-сайту

Скопировано