Люберцы, ул. Кирова, д.1
Пн-пт с 09:00 до 21:00, Сб-вс с 10:00 до 19:00

Новый дом! J12111

Котельники, Белая дача, микрорайон Белая Дача, д.27 Котельники (г.Котельники) Таганско-Краснопресненская 4 мин.
Комнаты 1
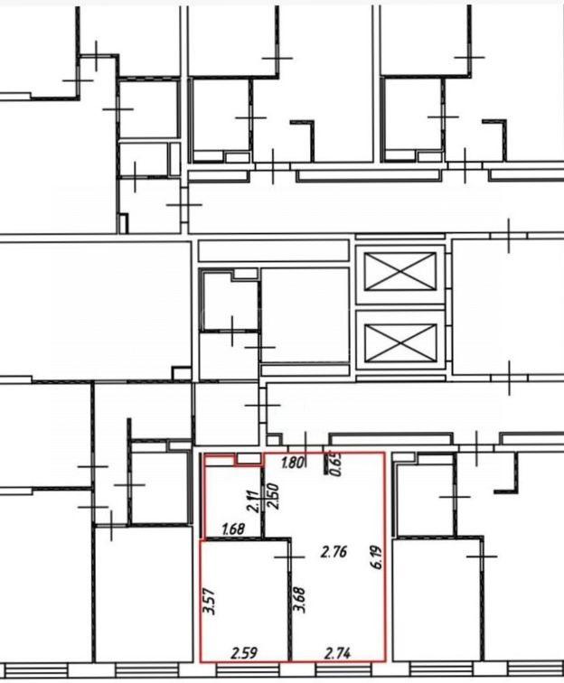
Площадь 31.6 м²
Жилая 9.2 м²
Кухня 14.4 м²
Этаж 10 из 25
Сдача 2025 г.
Елена Савельева Елена Савельева
Специалист по недвижимости
+7(925)960-4121 elena.saveleva@century21.ru
QR
Ссылка на объект
Данная сделка застрахована компанией Ресо-гарантия!

Светлая НОВАЯ квартира в ЖК «Кузьминский лес»! Жилищный комплекс с собственной социальной и торговой инфраструктурой, рядом детские сады, школы, магазины, пруд и лесопарк!

Отличная транспортная доступность 2 км до МКАД, 15 минут до метро «Котельники».

Ремонт от застройщика, НИКТО НЕ ПРОЖИВАЛ! Удачная планировка: изолированная комната 9 кв.м. и кухня-гостинная 14,5кв.м.!

Идеальное решение для комфортного проживания!

Покупателю:
- бесплатное юридическое сопровождение сделки;
- квалифицированная помощь в получении ипотеки в ведущих банках, срок одобрения от 1 до 3 дней;
- специальные скидки 0,3-5%;
- индивидуальный подбор ипотеки с наименьшей ставкой с учетом госпрограмм, акций;

Звоните и скорее записывайтесь на показы!
Характеристики
  • Тип недвижимости Квартиры
  • Населенный пункт Котельники
  • Микрорайон Белая дача
  • Адрес микрорайон Белая Дача, д.27
  • Станция метро Котельники (г.Котельники) ( 4 мин.)
  • Станция метро Жулебино (Котельники)
  • Ипотека да
  • Год постройки дома 2025 г.
  • Тип дома Панельный
  • Количество комнат 1
  • Общая площадь 31.6 м²
  • Тип комнат раздельные
  • Жилая площадь 9.2 м²
  • Площадь кухни 14.4 м²
  • Этаж 10
  • Этажей в доме 25
  • Тип санузла Совмещенный
  • Количество совмещенных санузлов 1
  • Состояние квартиры отличное
  • Вид из окон во двор
  • Высота потолков в метрах 2.7 м.
  • Тип продажи для вторички Свободная
  • Тип парковки наземная (придомовая)
  • Наличие интернета нет
  • Наличие мебели нет
  • Наличие телефона нет
  • Апартаменты нет
  • Мусоропровод нет
  • Название ЖК Кузьминский лес
  • Количество грузовых лифтов 2
  • Количество пассажирских лифтов 1
  • Отопление нет

Застройщик:

АО «КОМПАНИЯ АТОЛ»

Задать вопрос


Другие объекты застройщика АО «КОМПАНИЯ АТОЛ»:
ПРОДАЖА
Котельники, микрорайон Белая Дача, д.26
Котельники (г.Котельники) Лермонтовский проспект (г. Котельники) Окская
8 700 000
  • Общая площадь35.6 м²
  • Жилая площадь16.9 м²
  • Площадь кухни10.7 м²
  • Этаж10

Вас также может заинтересовать:
ПРОДАЖА
Котельники, микрорайон Парковый, д.2
Котельники (г.Котельники) Жулебино (Котельники)
7 850 000
  • Общая площадь35.4 м²
  • Жилая площадь17 м²
  • Площадь кухни10.5 м²
  • Этаж9
ПРОДАЖА
Котельники, микрорайон Белая Дача, д.22
Котельники (г.Котельники) Жулебино (Котельники) Лермонтовский проспект (г. Котельники)
8 850 000
  • Общая площадь40.9 м²
  • Жилая площадь21 м²
  • Площадь кухни8.6 м²
  • Этаж11
ПРОДАЖА
Котельники, микрорайон Парковый, д.2
Котельники (г.Котельники) Жулебино (Котельники)
7 850 000
  • Общая площадь35.4 м²
  • Жилая площадь17 м²
  • Площадь кухни10.5 м²
  • Этаж8

Мы используем файлы cookie, чтобы обеспечить вам наилучший доступ к нашему веб-сайту

Скопировано