Люберцы, ул. Кирова, д.1
Пн-пт с 09:00 до 21:00, Сб-вс с 10:00 до 19:00

Супер Вариант! J12067

Москва, Нижегородский, проезд Автомобильный, д.4 Калитники МЦД - 2 8 мин.
Комнаты Студия
Площадь 23.3 м²
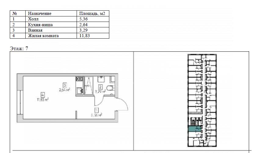
Этаж 7 из 22
Сдача 2024 г.
Материал Монолит
Тип продажи Свободная
Лилит Мартиросян Лилит Мартиросян
Специалист по недвижимости
+7(925)078-9996 lilit.martirosyan@century21.ru
QR
Ссылка на объект
Данная сделка застрахована в РЕСО Гарантия!
УЖЕ ВЫДАЮТ КЛЮЧИ!
В продаже апартаменты-студия в ЖК бизнес-класса "Nice Loft"
Корпус 5. Этаж 7. Открытый вид на город.
Отделка черновая. Потолки 3,3 метра. Панорамное остекление. Свободный вид из окна!

Создайте уютное пространство для себя или сдачи в аренду, как инвестиция с хорошей окупаемостью.

Современные лобби и архитектура, бизнес-класс, транспортная доступность, спортивная и другая инфраструктура - это о ЖК Nice Loft.

Комплекс возводится на границе с ЦАО недалеко от Садового кольца и шаговой доступности от станции метро "Волгоградский проспект" и метро "Пролетарская", станции МЦК "Новохохловская" и МЦД "Калитники". Рядом автобусная остановка.

В проекте семь корпусов переменной этажности, парк и уникальный спортивный кластер. Закрытая внутренняя территория без машин. Подземный паркинг!
20 000 кв.м. - площадь cпортивной инфраструктуры: 1 км беговая дорожка, 2 ледовые арены, 5 многофункциональных залов, 10+ видов спорта в одном кластере

В окружении Nice Loft находится сразу несколько парков. Главный из них — Таганский парк одна из самых старых парковых территорий Москвы. Другое направление приведет вас к Лефортовскому парку, рядом с которым расположена Рогожская слобода.

Обилие зелени, ландшафтный дизайн и концепция разноуровневого пространства — то, что так необходимо в мегаполисе, станет доступно для жителей Nice Loft.
Подробнее
Характеристики
  • Тип недвижимости Квартиры
  • Населенный пункт Москва
  • Район Нижегородский
  • Адрес проезд Автомобильный, д.4
  • Станция метро Калитники ( 8 мин.)
  • Станция метро Волгоградский проспект ( 14 мин.)
  • Станция метро Пролетарская ( 7 мин.)
  • Ипотека да
  • Год постройки дома 2024 г.
  • Тип дома Монолит
  • Количество комнат Студия
  • Общая площадь 23.3 м²
  • Этаж 7
  • Этажей в доме 22
  • Тип санузла Совмещенный
  • Количество совмещенных санузлов 1
  • Ремонт черновая отделка
  • Состояние квартиры отличное
  • Вид из окон на улицу
  • Высота потолков в метрах 3.3 м.
  • Тип продажи для вторички Свободная
  • Тип парковки подземная
  • Наличие интернета нет
  • Наличие мебели нет
  • Наличие телефона нет
  • Апартаменты да
  • Мусоропровод нет
  • Название ЖК Комплекс апартаментов «‎‎Nice Loft»
  • Идентификатор корпуса Корпус 5
  • Количество грузовых лифтов 2
  • Количество пассажирских лифтов 2
  • Отопление да

Задать вопрос


Другие объекты застройщика ООО «‎СЗ «‎Ренессанс»:
ПРОДАЖА
Москва, проезд Автомобильный, д.4
Калитники Волгоградский проспект Пролетарская
6 750 000
  • Общая площадь17.5 м²
  • Этаж16
  • Тип санузлаСовмещенный
  • Тип парковкиподземная

Вас также может заинтересовать:
ПРОДАЖА
Москва, улица 2-я Вольская, д.2
Некрасовка (Москва) Выхино Лухмановская
9 300 000
  • Общая площадь45 м²
  • Жилая площадь28 м²
  • Площадь кухни6.1 м²
  • Этаж9
ПРОДАЖА
Москва, улица Головачёва, д.17
Люблино
9 100 000
  • Общая площадь29.3 м²
  • Жилая площадь16 м²
  • Площадь кухни6.5 м²
  • Этаж5
ПРОДАЖА
Москва, улица 1-я Владимирская, д.20А
Перово Шоссе Энтузиастов Кусково
6 500 000
  • Общая площадь21.5 м²
  • Жилая площадь13.5 м²
  • Площадь кухни5 м²
  • Этаж2

Мы используем файлы cookie, чтобы обеспечить вам наилучший доступ к нашему веб-сайту

Скопировано