Люберцы, ул. Кирова, д.1
Пн-пт с 09:00 до 21:00, Сб-вс с 10:00 до 19:00

Дом-Баня J11954

Раменское, Московская обл, г Раменское, тер ДП Земляничные поля-2, д 216
Комнаты 3
Площадь 91.4 м²
Этажи 2
Сдача 2020
Надежда Трунтаева Надежда Трунтаева
Руководитель отдела продаж
+7(925)033-1323 tnv-rus@mail.ru
QR
Ссылка на объект
ВЫ ПРИОБРЕТАЕТЕ ДОРОГОЙ ДОМ ИЗ ОЦИЛИНДРОВАННОГО БРЕВНА (А ЭТО ДОРОГО), КАЧЕСТВЕННЫЙ ФУНДАМЕНТ (КОТОРЫЙ ОТСТОЯЛСЯ), УЧАСТОК С УДАЧНОЙ ТРАНСПОРТНОЙ РАЗВЯЗКОЙ И + РАЗВЕДЕНА ЭЛЕКТРИКА ПО ВСЕМУ ДОМУ!!!!!

Данная сделка застрахована САО "РЕСО-Гарантия" .

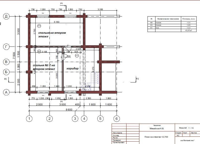
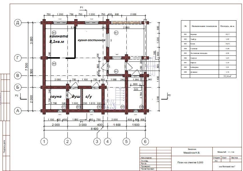
Вашему вниманию предлагается 2-х этажный дом-баня 91,4 м2 из оцилинрованного бревна 24см, теплый шов, на ленточном фундаменте. Электрика разведена по всему дому, на пером этаже выполнена разводка под теплый пол. Вся электрика в ретро стиле, даже выключали подобраны ретро. Участок - 7 соток, отопление электрическое, конвекторное (разведено по дому) 15кВт.
На первом этаже кухня гостиная (есть возможность разделить пространство и сделать небольшую комнату), санузел с душевой, сауна. На втором этаже 2 спальни.
Участок ровный, сухой.

Покупателю:
- Бесплатное сопровождение сделки;
- Квалифицированная помощь в получении ипотеки в ведущих банках, срок одобрения от 1 до 3 дней;
- Возможность подачи заявок одновременно до 10 банков, высокая степень одобрения;
- Индивидуальный подбор ипотеки с наименьшей ставкой с учетом гос. программ, акций!
Подробнее
Характеристики
  • Тип недвижимости Дома, дачи
  • Населенный пункт Раменское
  • Адрес Московская обл, г Раменское, тер ДП Земляничные поля-2, д 216
  • Тип объекта дача
  • Тип дома деревянный
  • Общая площадь 91.4 м²
  • Площадь участка 7 сот.
  • Количество этажей 2
  • Подвальное помещение нет
  • Год постройки 2020
  • Материал стен Брус
  • Тип участка Дачное некоммерческое партнерство
  • Санузел в доме
  • Душ В доме
  • Удобства сауна
  • Наличие газа в доме нет
  • Количество комнат 3
  • Тип отопления Электрическое
  • Наличие электричества да
  • Статус земли ДНП
  • Количество комнат 3
  • Виды земельного участка Дачное хозяйство
Задать вопрос


Вас также может заинтересовать:
ПРОДАЖА
Раменское, Московская область, Раменский муниципальный округ, КП Высокий берег, 87
Котельники (Раменское) Жулебино (Раменское) Лермонтовский проспект (Раменское)
8 750 000
  • Тип домадеревянный
  • Количество этажей2
  • Год постройки2018
  • Материал стенСэндвич-панели
ПРОДАЖА
Раменское, Московская обл, г Раменское, тер ДНП Морозово, д 191
Котельники (Раменское) Жулебино (Раменское) Лермонтовский проспект (Раменское)
8 850 000
  • Тип домадеревянный
  • Количество этажей1
  • Год постройки2020
  • Материал стенСэндвич-панели
ПРОДАЖА
Раменское, Московская обл, г Раменское, деревня Морозово, д 82
Котельники (Раменское) Фабричная Удельная(МЦД)
6 900 000
  • Тип домакирпичный
  • Количество этажей2
  • Год постройки1988
  • Материал стенКирпич

Мы используем файлы cookie, чтобы обеспечить вам наилучший доступ к нашему веб-сайту

Скопировано